PJE. DUC DE TETUAN (RIPOLLET)
ÚLTIMO PISO EN VENTA
246.415 €
73m2. 1 habitación tipo suite, 2
habitaciones individuales, 2 baños completos, amplio comedor,
cocina office, lavadora y trastero, parquet, calefacción, A/A,
persianas eléctricas de aluminio.
Incluye plaza de parking.
(VENDIDO)

RBLA. SANT JORDI, 125
PAU CASALS
(RIPOLLET)
LOCALES COMERCIALES EN VENTA
|
Empresa constituida con profesionales con más de 25 años en el sector de la construcción.
CONSTRUCCIÓN DE PISOS Y PLAZAS DE PARKING
|
NUEVA PROMOCIÓN EN CONSTRUCCIÓN EN RAMBLA DE SANT JORDI (RIPOLLET)

PROMOCIÓN OBRA NUEVA EN PAU CASALS ESQUINA FONTANELLA (RIPOLLET)
PISOS DE 3 HABITACIONES Y DÚPLEX DE ALTO STANDING
A LA VENTA Tel. 670 290 001 - 608
794 520
A PARTIR DE 250.000 €
(HAGA CLICK EN LA IMAGEN)
PROMOCIÓN OBRA NUEVA EN MONTURIOL 53-55 (RIPOLLET)
A LA VENTA Tel. 670 290 001 - 608
794 520
PISOS DE 3 HABITACIONES Y PLAZA DE PARKING INCLUIDA
A PARTIR DE 257,222 €
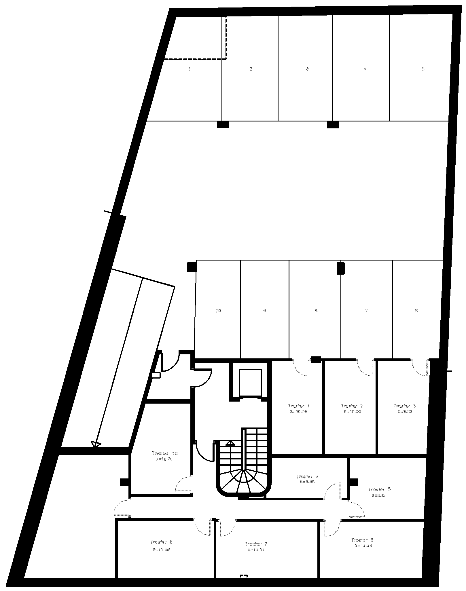
| SUBTERRÁNEO (PARKING) |
|
|
|
|
|
|
|
|
Plazas parking |
10 |
|
|
|
| Trastero 1 |
10,00 m2 |
|
Trastero 6 |
12,28 m2 |
| Trastero 2 |
10,00 m2 |
|
Trastero 7 |
12,11 m2 |
| Trastero 3 |
9,82 m2 |
|
Trastero 8 |
11,58 m2 |
| Trastero 4 |
6,55 m2 |
|
Trastero 9 |
21,00 m2 |
| Trastero 5 |
9,84 m2 |
|
Trastero 10 |
10,70 m2 |
| VER MEMORIA DE CALIDADES |
BAJO 1ª (VENDIDO)
|
|
|
|
|
|
|
|
|
Vestíbulo |
4,41 m2 |
|
Habitación plancha |
14,68 m2 |
| Pasillo |
6,68 m2 |
|
Baño 1 |
6,82 m2 |
| Sala comedor |
20,70 m2 |
|
Baño 2 |
3,15 m2 |
| Cocina |
9,85 m2 |
|
Terraza |
50,30 m2 |
| Habitación 1 |
14,21 m2 |
|
Lavadero |
5,62 m2 |
| Habitación 2 |
7,91 m2 |
|
Patio |
5,00 m2 |
| VER MEMORIA DE CALIDADES |
| 1º 1ª |
|
|
|
|
|
|
|
|
Vestíbulo |
2,85 m2 |
|
Habitación plancha |
7,50 m2 |
| Pasillo |
4,00 m2 |
|
Baño 1 |
4,81 m2 |
| Sala comedor |
20,00 m2 |
|
Baño 2 |
2,40 m2 |
| Cocina |
8,10 m2 |
|
Galería |
7,75 m2 |
| Habitación 1 |
12,17 m2 |
|
Patio A |
7,15 m2 |
| Habitación 2 |
7,00 m2 |
|
|
|
| VER MEMORIA DE CALIDADES |
| 1º 2ª (VENDIDO) |
|
|
|
|
|
|
|
|
Vestíbulo |
4,60 m2 |
|
Habitación 2 |
7,06 m2 |
| Pasillo |
5,33 m2 |
|
Habitación 3 |
7,00 m2 |
| Sala comedor |
21,41 m2 |
|
Baño 1 |
4,08 m2 |
| Cocina |
8,05 m2 |
|
Baño 2 |
3,22 m2 |
| Habitación 1 |
12,93 m2 |
|
Terraza |
82,91 m2 |
|
|
|
|
|
| VER MEMORIA DE CALIDADES |
| 1º 3ª |
|
|
|
|
|
|
|
|
Vestíbulo |
5,06 m2 |
|
Habitación plancha |
6,81 m2 |
| Pasillo |
5,40 m2 |
|
Baño 1 |
4,92 m2 |
| Sala comedor |
20,00 m2 |
|
Baño 2 |
2,52 m2 |
| Cocina |
8,15 m2 |
|
Galería |
5,42 m2 |
| Habitación 1 |
10,71 m2 |
|
Patio B |
7,11 m2 |
| Habitación 2 |
6,80 m2 |
|
|
| VER MEMORIA DE CALIDADES |
| 2º 1ª (VENDIDO) |
|
|
|
|
|
|
|
|
Vestíbulo |
2,85 m2 |
|
Habitación 2 |
7,00 m2 |
| Pasillo |
4,00 m2 |
|
Habitación plancha |
7,50 m2 |
| Sala comedor |
20,00 m2 |
|
Baño 1 |
4,81 m2 |
| Cocina |
8,10 m2 |
|
Baño 2 |
2,40 m2 |
| Habitación 1 |
12,17 m2 |
|
Galería |
7,75 m2 |
|
|
|
|
|
| VER MEMORIA DE CALIDADES |
| 2º 2ª (VENDIDO) |
|
|
|
|
|
|
|
|
Vestíbulo |
4,60 m2 |
|
Habitación 3 |
7,00 m2 |
| Pasillo |
5,33 m2 |
|
Baño 1 |
4,80 m2 |
| Sala comedor |
21,41 m2 |
|
Baño 2 |
3,22 m2 |
| Cocina |
8,05 m2 |
|
Lavadero |
4,23 m2 |
| Habitación 1 |
12,93 m2 |
|
Galería 1 |
9,14 m2 |
| Habitación 2 |
7,06 m2 |
|
Galería 2 |
7,71m2 |
| VER MEMORIA DE CALIDADES |
| 2º 3ª (VENDIDO) |
|
|
|
|
|
|
|
|
Vestíbulo |
5,06 m2 |
|
Habitación 2 |
6,80 m2 |
| Pasillo |
5,40 m2 |
|
Habitación plancha |
6,81 m2 |
| Sala comedor |
20,00 m2 |
|
Baño 1 |
4,92 m2 |
| Cocina |
8,15 m2 |
|
Baño 2 |
2,52 m2 |
| Habitación 1 |
10,71 m2 |
|
Galería |
5,42 m2 |
|
|
|
|
|
| VER MEMORIA DE CALIDADES |
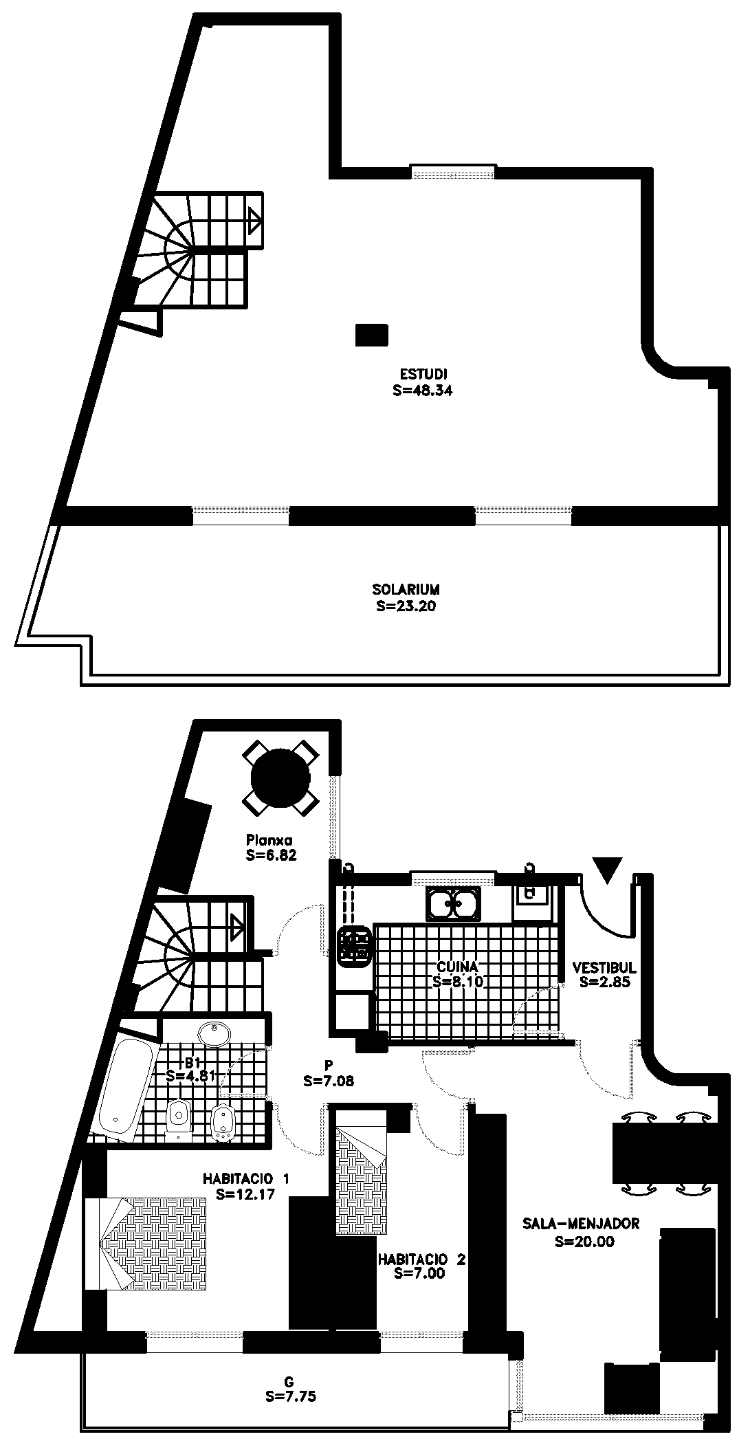
| 3º 1ª (VENDIDO) |
|
|
|
|
|
|
|
|
Vestíbulo |
2,85 m2 |
|
Habitación plancha |
6,82 m2 |
| Pasillo |
7,08 m2 |
|
Baño 1 |
4,81 m2 |
| Sala comedor |
20,00 m2 |
|
Galería |
7,75 m2 |
| Cocina |
8,10 m2 |
|
Estudio |
48,34 m2 |
| Habitación 1 |
12,17 m2 |
|
Solarium |
23,20 m2 |
| Habitación 2 |
7,00 m2 |
|
|
|
| VER MEMORIA DE CALIDADES |
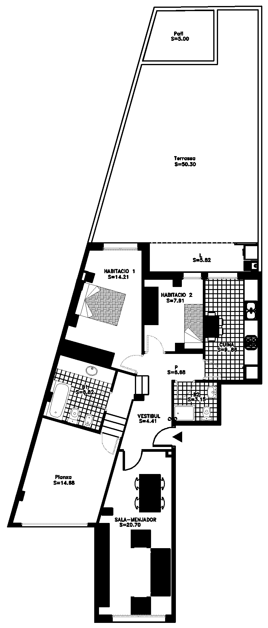
| 3º 2ª (VENDIDO) |
|
|
|
|
|
|
|
|
Vestíbulo |
4,60 m2 |
|
Baño 1 |
4,80 m2 |
| Pasillo |
5,33 m2 |
|
Baño 2 |
3,22 m2 |
| Sala comedor |
21,41 m2 |
|
Galería 1
|
9,14 m2
|
| Cocina |
8,05 m2 |
|
Galería 2 |
7,71 m2 |
| Habitación 1 |
12,93 m2 |
|
Lavadero |
4,23 m2 |
| Habitación 2 |
7,06 m2 |
|
Estudio |
42,59 m2 |
| Habitación 3 |
7,00 m2 |
|
Solarium |
53,64 m2 |
|
|
|
|
|
| VER MEMORIA DE CALIDADES |
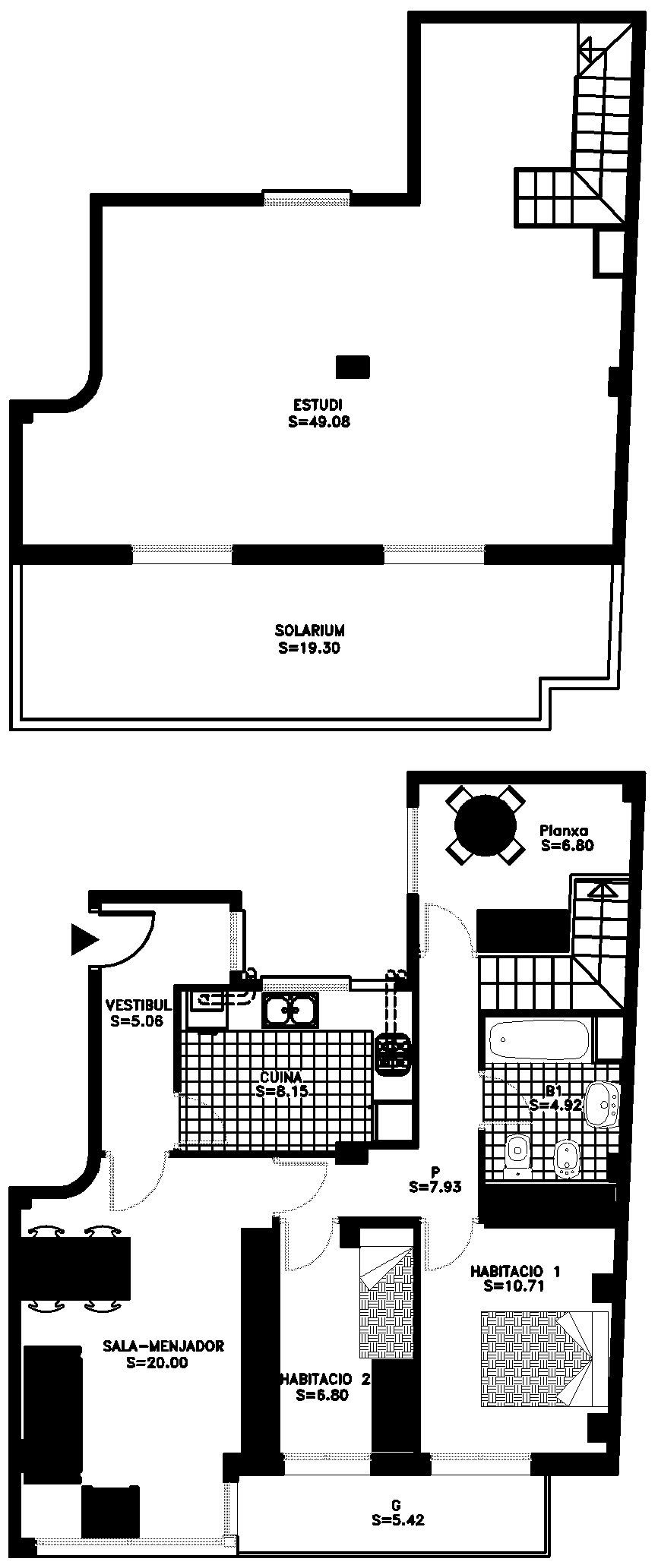
| 3º 3ª (VENDIDO) |
|
|
|
|
|
|
|
|
Vestíbulo |
5,08 m2 |
|
Habitación plancha |
6,80 m2 |
| Pasillo |
7,93 m2 |
|
Baño 1 |
4,92 m2 |
| Sala comedor |
20,00 m2 |
|
Galería |
5,42 m2 |
| Cocina |
8,15 m2 |
|
Estudio |
49,08 m2 |
| Habitación 1 |
10,71 m2 |
|
Solarium |
19,30 m2 |
| Habitación 2 |
6,80 m2 |
|
|
| VER MEMORIA DE CALIDADES |
PROMOCIÓN EN MONTURIOL 53-55 (RIPOLLET)
A LA VENTA Tel. 670 290 001 - 608
794 520

PROMOCIÓN EN MONTURIOL 53-55 (RIPOLLET)
A LA VENTA Tel. 670 290 001 - 608
794 520
|